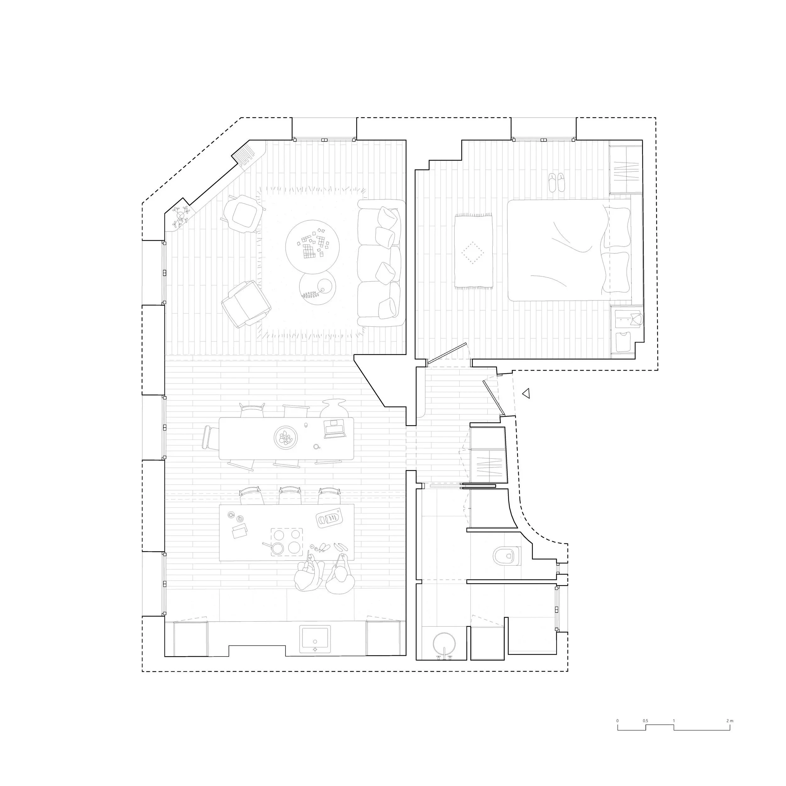
016 Condamine
Localisation : Paris (75017)
Surface : 61 m²
Année : 2026
Programme : Rénovation d’un appartement
Maîtrise d’ouvrage : Client privé
Montant de travaux : N.C
Statut : Livré
Travaux : Emilion
Photographe : -
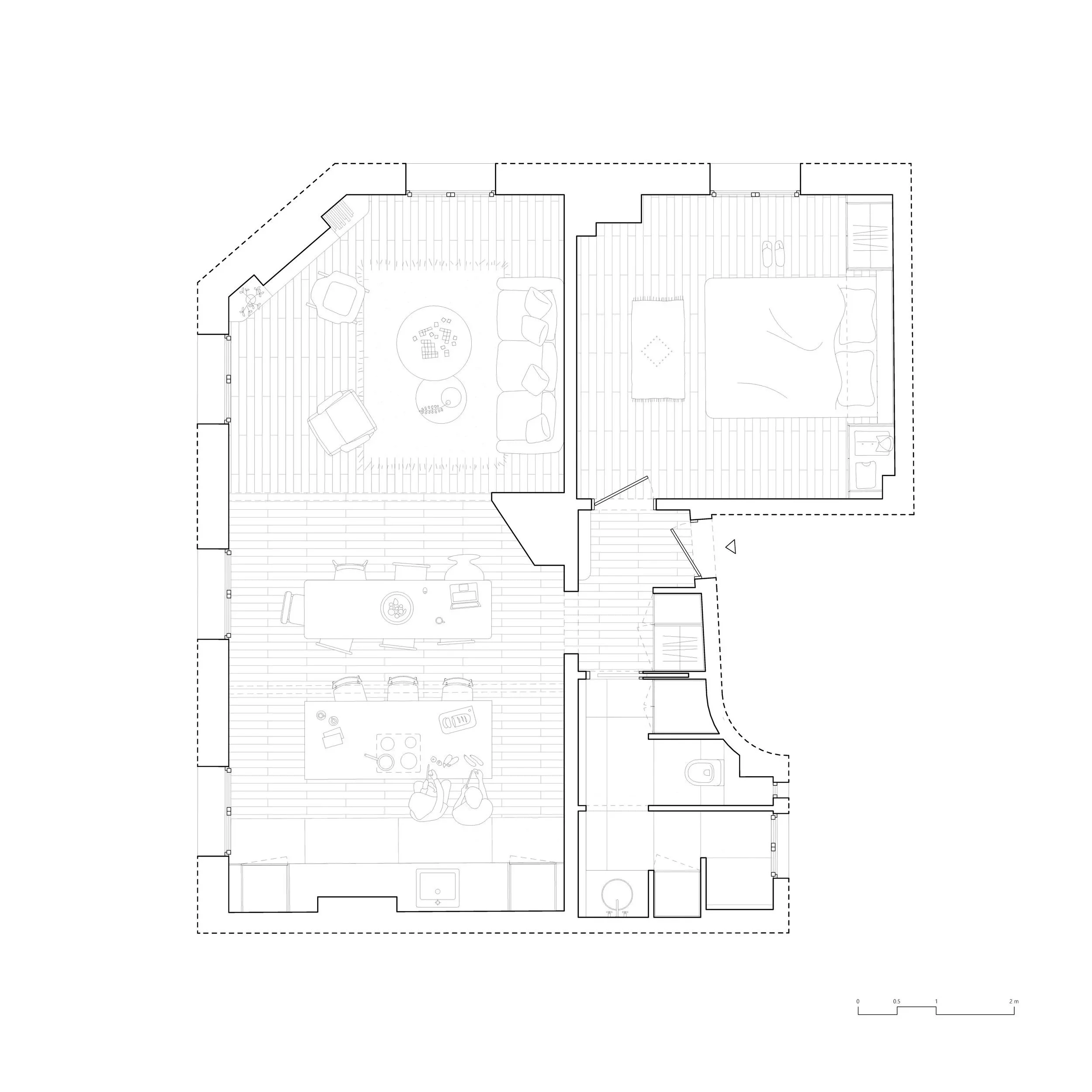
016 Condamine
Localisation : Paris (75017)
Surface : 61 m²
Année : 2026
Programme : Rénovation d’un appartement
Maîtrise d’ouvrage : Client privé
Montant de travaux : N.C
Statut : Livré
Travaux : Emilion
Photographe : -